网站支持IPV6 | 无障碍阅读 | 适老化模式
当前位置: 首页 > 政府信息公开 > 法定主动公开内容 > 基层政务公开 > 城乡规划 > 城乡规划

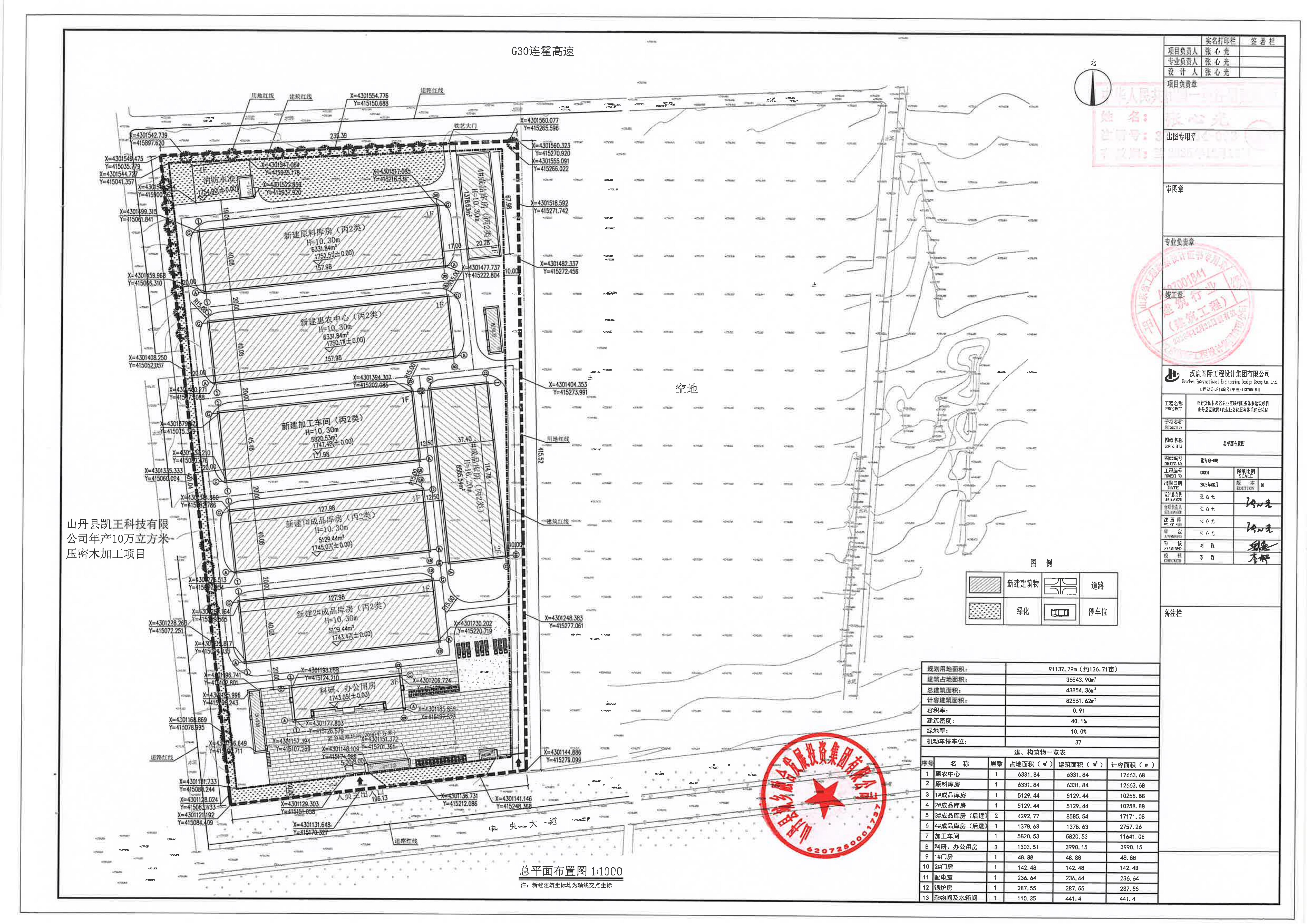
亚行贷款甘肃省农业互联网服务体系建设项目山丹县互联网+农业社会化服务体系建设项目总平面图

索引号 6207250018/2025-00351 发文字号
关键词 发布机构 自然资源局
公开形式 公开目录
生成日期 2025-12-10 15:57:26 是否有效


友情链接

主办:山丹县人民政府办公室 承办:山丹县信息化工作办公室 联系我们

陇ICP备12000199号-1 甘公网安备62072502000105号 网站标识码:6207250003